电子天平结构原理
发布日期:2013-10-04 23:30:11
信息摘要:
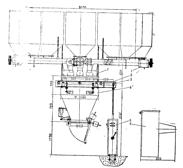
1-螺旋给料器 2-密封箱 3-承重杠杆 4-秤斗 5-光删自动头 6-机箱 7-连接袋 数字式多种配料秤的结构如上图,从图中不难看出.数字式多种配料秤的结构要比数字式单机 配料秤 的结构复

1-螺旋给料器 2-密封箱 3-承重杠杆 4-秤斗 5-光删自动头 6-机箱 7-连接袋
数字式多种配料秤的结构如上图,从图中不难看出.数字式多种配料秤的结构要比数字式单机
配料秤的结构复杂些,因为单机式的加料机构只有一组.多种配料秤的加料机构多达几十组,但杠杆系统、秤斗、光栅自动头、密封箱等部分,只采用了各一组机构.这样一套系统结构就可代替单机配料秤几台秤所起的配料作用,因此从总的结构来看还是多种配料秤的结构比较简单。